Duva Development
Home
Why Choose Us
The B.D’Uva Advantage
Products & Services
Partners
Certifications & Associations
Testimonials
Our Process
Plans Gallery
Floor Plans & Renderings
Contact
Blog
Home
Why Choose Us
The B.D’Uva Advantage
Products & Services
Partners
Certifications & Associations
Testimonials
Our Process
Plans Gallery
Blog
Contact
14
Floor Plans & Renderings
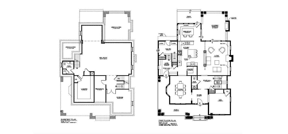
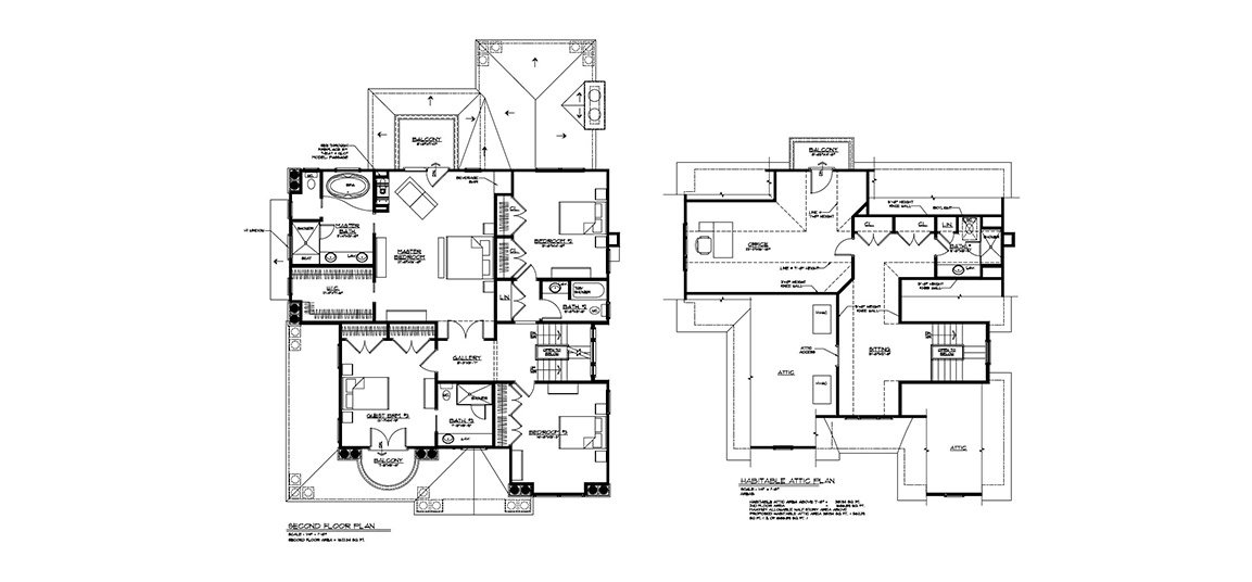
The Vanderbilt
Previous Property
View on map
Property Details
The Vanderbilt
This Property Offers:
3,887 habitable sq ft
2 stories
4 beds
3 full baths, 2 half
Optional finished basement and attic
Download Floor Plan »
TO SCHEDULE AN APPOINTMENT, please call
973.879.0068